We previously reported on plans to add a new Haunted House to the theme park. Planning permission was refused back in 2014 but the park submitted an appeal against the council’s decision and won. It now hopes to open the new Haunted House attraction in 2019 or 2021.
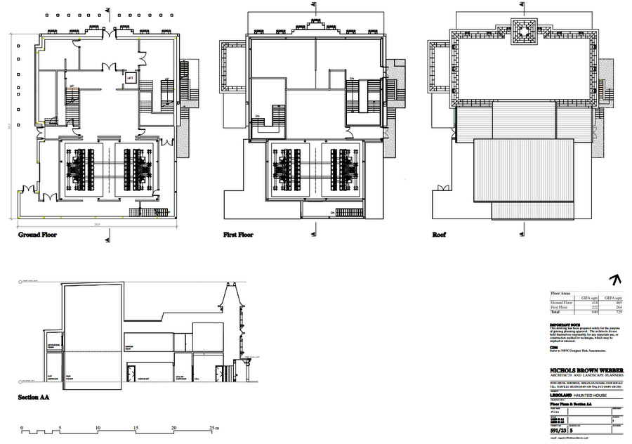
The proposed Haunted House will be located in the area between the Heartlake Express railway track and the footpath from Coastguard HQ to Atlantis - Submarine Voyage. The attraction is a drop ride housed within a themed building, featuring a spooky walkthrough experience and two 10m drop towers.
The queue line will wind through a landscaped area which is to be themed with ‘graveyard’ and ‘spider’s web’ areas and will also feature various elements such as a ‘brick build’ and ‘swamp creature’. Visitors will enter the Haunted House from the front of the building which will be themed to the LEGO Monster Fighters brand, including broken shutters and boarded up windows.
The rear of the building comprises a double height space which houses the main drop-ride structures and will be themed using ‘Keep Out’ signs, boarding and effects to create holes in the building. The ride itself comprises two drop towers with two gondolas which are housed within the Haunted House building.
https://www.themeparks.eu.com/legoland-windsor-guide/news/10-year-plans-for-legoland-windsor#sigProId0211a2465a
The first phase of a proposed LEGOLAND Holiday Village will include 150 new lodges built on part of St Leonards Farm, including the fields immediately adjoining the overflow car parks and the main farm buildings complex. The additional piece of land was purchased last year to support the resort's long term short breaks accommodation strategy.
There will be a total of 120 lodges for families of up to five people, 10 larger ones and 20 designed to look like LEGO barrels, much like those found at LEGOLAND Deutschland. Further phases of the project would see another 300 lodges added to the holiday village.
https://www.themeparks.eu.com/legoland-windsor-guide/news/10-year-plans-for-legoland-windsor#sigProIdf478a42c9d
There are currently 5,000 car parking spaces at the resort but due to flooding many of these are often are unusable, therefore the park also wants to create new hard standing spaces that can be used all year round.

